Bezpečnostní technologie
Nezávazná poptávka
Napište nám
Rychlý kontakt
737 832 844
0
Produkty v košíku:
0 ks
Cena celkem:
0,-
Navigace
Úvodní strana
Kamerové systémy
Zabezpečovací systémy
Domovní telefony
Eshop
Reference
Kontakt
Nacházíte se na
:
Úvodní strana
»
Eshop
»
Vstupní systémy
»
Samozamykací zámky ERBI
»
interiérové a vchodové 92/45
» SAM EL P 9245
Kamerové systémy
Elektronika
Požární signalizace
Vstupní systémy
> 2N Interkomy
> 2N přístupový systém
> ABB Welcome Midi
> ADVENT - docházka, přístup, strava a další
> Akční nabídka
> COMMAX audio a video telefony
> Čtečky, klávesnice, přístup
> DAHUA IP videotelefony
> DAHUA přístupový systém
> FARFISA audio a video telefony
> IP TELEFONIE
> LEGRAND-BTICINO
> NODER přístupový systém
> Novinky
> Samozamykací zámky Abloy
> Samozamykací zámky ERBI
> interiérové a vchodové 72/55
> interiérové a vchodové 72/65
> interiérové a vchodové 90/50
> interiérové a vchodové 92/35
> interiérové a vchodové 92/45
> příslušenství
> TECHFASS přístupový systém
> TESLA audio a video telefony
> Turnikety
> Uzamykací systémy
> V-LINE audio a video telefony (2BUS)
> VAR-TEC přístupový systém
Zabezpečovací systémy
ISB
Novinky
OZV
Strukturovaná kabeláž
Uživatel
Registrace nového zákazníka
Zapomněli jste heslo?
Užitečné informace
Ochrana osobních dat
Všeobecné smluvní podmínky
Platební podmínky
Reklamační řád
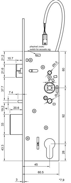
SAM EL P 9245
Značka:
ERBI systems
elektromechanický samozamykací zámek
není skladem
Naše cena:
9 535 Kč
ks
Novinka
Popis produktu
Vchodový zadlabací elektromechanický zámek s přepínačem akustické signalizace pro všechny interiérové i venkovní dveře s uzamčením bez klíčů. Rozměry zámku umožňují nahradit již dosluhující zámky bez dodatečných úprav. Bez panikové funkce-elektrické ovládání obou klik. S funkcí samozamykání, nejužší 15 mm zámek na trhu.
Technické parametry
Typ:
zadlabací elektromechanický zámek s funkcí samozamykání
Akustická signalizace:
ANO / NE - nastavitelná přepínačem
Napájení:
10 - 24 V DC
Proudový odběr:
250 mA
Vlastnosti:
střelka oboustranná – levo/pravá
Vlastnosti:
bez panikové funkce-elektrické ovládání obou klik
Vlastnosti:
vzdálenost kliky od čela zámku (včetně lišty) 45 mm
Vlastnosti:
rozteč kliky a klíčové vložky 92 mm
Vlastnosti:
průchozí čtyřhran 8 x 8 mm
Vlastnosti:
čelní lišta na zámku (mm): 270 x 22 x 3
Vlastnosti:
rozměry (mm): 180 x 15 x 60
Vlastnosti:
veškeré kritické díly jsou z nerezové oceli,
Vlastnosti:
zpracovány novou metalurgickou technologií
Vlastnosti:
záruční doba: 5 let
Konektor:
vývod - 2 žilový kabel zakončený 2 PIN konektorem
Konektor:
vhodné dokoupit protikus (2304-008) KAB 0,1/2K
Tento web používá k poskytování služeb, personalizaci reklam a analýze návštěvnosti soubory cookie. Používáním tohoto webu s tím souhlasíte.
V pořádku
Další informace